泥石分離機(多級聯動輥軸分離篩、多功能滾軸分離篩、滾軸篩、蝶形篩等),用途不一叫法也有區別。部分砂石場挖出來的石料由于含泥量較大,使用起來會造成破碎機堵塞、產能低、砂石質量上不去等問題。泥石分離機既能化解短缺的沙石資源狀況,還能迅速分離,不需用水,可取代傳統給料機和振動篩等,具有一機多用的功效。
泥石分離機廣泛用于:石料場的泥石分離、砂石分離,選礦廠礦石分選、煤礦煤炭輸送分離、煤矸石分離,建筑裝修垃圾分離、生活垃圾分離、陳腐垃圾分離等。
?電機驅動滾筒軸線作旋轉運動,減速機調節筒體以一定的轉速旋轉,物料由進料口進入筒體內,在旋轉產生的離心力作用下,物料在筒內翻滾,自上而下通過分級篩網析出,由于篩網分級尺寸不同,物料逐漸被分離篩選,粒度合格的物料經篩分后落入到各自的漏斗,然后由人力方式運出或通過輸送機自流送往成品站。合格產品經過下端出料口排出,顆粒較大,分選不合格的產品經另一排料口排出,筒內清理裝置,使篩網不宜被阻塞。??滾筒篩分機的性能特點:?滾筒篩分機具有功率小,能耗低,筒內有自清掃裝置,篩孔不易被堵塞;?占用空間小,投資成本降低;?運轉平穩可靠;?篩分效率高;?產量大;?工藝布置簡便,安裝、維護方便,操作方便等特點。同時對物料的適應能力強,粘性、濕度大、臟、雜等各種性質的物料都能篩分,進料方式多樣化,即人工方式和機械傳動,能大批量生產,篩網采用環狀扁鋼圈設計,耐磨性好,使用壽命長,結構簡單,維修方便。

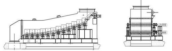
滾軸篩是由機體、機蓋、篩軸、進煤斗、出口罩殼和控制柜六大部分組成。
1、機體部分
機體為焊接件,所有篩軸總成通過聯結螺栓固定在機體,機體側面裝有襯板。
2、機蓋部分
機蓋為焊接件,機蓋起密封作用,機蓋上面設有檢修門,前、后跟進煤斗和出口罩殼聯結。
3、篩軸總成部分
篩軸總成由輥道電機(含減速機)、篩軸、篩片、平鍵、鎖緊螺母、聯軸器、軸承座及軸承座附件組成,輥道電機(含減速機)與篩軸通過聯軸器直聯。
4、進煤斗部分
帶旁路的進煤斗為焊接件,內設擋板,擋板通過電動推桿執行器推動,限位翻轉,進煤斗內裝有襯板。
5、出口罩殼部分
出口罩殼為焊接件,出口罩殼起密封作用,出口罩殼上面設有檢修門。
型號參數表