環鏈斗式提升機采用混合式或重力卸料,挖取式裝料。牽引件用優質合金鋼高度圓環鏈,適用于輸送粉狀、粒狀及小塊狀的無磨琢及磨琢性小的物料,如煤、水泥、碎石、砂子、化肥、糧食等
結構

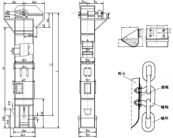
TH環鏈斗式提升機主要由運行部件、牽引件(輸送鏈)、驅動裝置、上部裝置、中部機殼、下部裝置、加料口(入料口)和卸料口(出料口)組成。
料斗形式
(TH型)備有二種料斗:ZH型(中深斗)一般適用于輸送濕的、易結塊、較難拋出的物料,如濕砂、型砂、化肥、堿肥、堿粉等。SH型(深斗)一般適用于輸送干燥的、松散易于拋出的物料,如水泥、碎石、煤塊等。TH系列環鏈斗式提升機傳動裝置有二種形式,分別配有ZJ型減速器和ZQ型減速器。ZJ型軸裝減速器直接套裝在主軸軸頭上,省去了傳動平臺,聯軸器等,使結構緊湊、重量輕、而且內部帶有異型輥逆止器,逆止可靠,該減速器噪聲低,運轉平穩,并隨主軸浮動,可消除安裝應力。本機*大輸送量365m3/h,*大提升高度為50m。
工作原理
TH環鏈斗式提升機利用牽引機構上的兩根環形鏈條由電動機產生動力通過聯軸器將需要的動力傳遞減速器上,小鏈輪帶大鏈輪,從而帶動整機運動。采用混合式或重力式卸料,掏取式提取物料,把物料從較低位的進料斗隨著輸送帶或鏈提升到一定高度后被拋灑出去,完成整個提升輸送過程。
優勢
1、輸送量大、運行平穩可靠、采用先進的設計原理和加工方法可無故障時間超過2萬小時,最大輸送量10-830m3/h,提升高度最大50m。
2、整機機殼分為單、雙通道兩種結構,機內重錘箱恒力可自動張緊,鏈輪為可更換輪緣組合式結構,更換簡便;使用壽命長,
3、適用松散密度小于1.5t/m,易于掏取的粉狀、粒狀、小塊狀的低磨琢性物料。輸送物料溫度不超過250℃。密封性好、環境污染少。
型號參數表
廠家鏈條安裝說明書
正確的安裝TH型環鏈斗式提升機可以保證設備在使用過程中避免發生不必要的一些故障,影響到生產的正常進行,而TH型環鏈斗式提升機的環鏈作為設備的牽引件,正確的安裝更是關系著整套設備能否正常使用的關鍵,為了方便運輸,斗式提升機的鏈條在發貨的時候都是做成八米一條的長度,整箱裝在一起進行打包。到達提升機工作現場的時候再進行裝配鏈接。
在發貨的時候,鏈條的兩個連接端都是被銷子固定的,在鏈條裝配鏈接之前需要先把一根鏈條的銷子卸掉。
為了防止在拆卸銷子的時候鏈條會變形,都會提前裝上一塊墊片。墊片多數是使用鋼管加工,在加上墊片之后,可以使用手錘或者是鏈條拆裝器進行拆卸銷子。銷子拆掉之后使用手錘和拆裝器把鏈條的兩端進行連接,上號銷子。
在提升機料條連接的時候需要把鏈條裝在鏈輪上,一條條的進行安裝。鏈條都連接安裝完畢了,再進行料斗的安裝。
提升機料斗是在有三個門的殼體上安裝的,安裝時裝上螺栓和平墊,使用的力氣要均勻,也不能擰的太近了。